VEDPANNOR, pyrolytiska vedpannor​, kombipannor, underförbränningspannor, pannor för fasta bränsle, pannor för centraluppvärmning 

 

Polttopuun energiapitoisuus (lämpöarvo) 20 % kosteuspitoisuudella:

  • Saarihalot – 1650 kWh/pm3
  • Koivuhalot – 1500 kWh/pm3
  • Havupuunhalot – 1300 kWh/pm3
  • Haavanhalot 850 – kWh/pm3
  • Harmaan lepän halot – 700 kWh/pm3

(pm3 – pinokuutiometri) 

Keskikokoisen omakotitalon lämmitystarve vuodessa on 150 kWh/m².  Jos puukattilan hyötysuhde on 80 %, silloin talon neliömetriä kohtaan tarvitaan vuodessa halkoja 150/(1500×0,8) = 0,125 pm3/v

150 m2 talon lämmittämiseksi kuluu vuodessa halkoja 0,125 × 150 = 18,75 pm3

1 pm3 koivuhalkoja maksaa n. 90 eur

 

....................................................................................................................................

 

alt

 

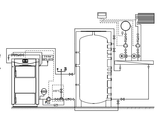
Tarjous PyroBurn Alpha PLUS 30

1 kpl. BURNiT PyroBurn Alpha PLUS 30 käänteispalokattila 30 kW

BURNiT PyroBurn Alpha PLUS 30 manual

1 kpl. H-savukaasutermostaatti 50 – 300 °C

1 kpl. BVTS jäähdytysventtiili 1,3 m, 97 °C

1 kpl. Eristetty 1500 l ovaalivaraaja, sisään rakennetulla käyttöveden kierukalla 15 m

1 kpl. Käyttöveden termostaattinen sekoitusventtiili 35-65°C

1 kpl. Latauspumppupaketti Laddomat 21-60, 72 ºC, R32

1 kpl. Paisunta-astia VRV 200 l

1 kpl. Lämpöparoni-sähkölämmityselementti 6 kW, 435 mm

1 kpl. Tech i-2 -lämmönsäädin kahdelle piirille

2 kpl. TECH lämmityspiirin 3-tie sekoitusryhmä

1 kpl. Rahti Suomeen

 

Hinta yhteensä:  xxxx eur  (sis. ALV:in)

 

Myyntiehdot ja takuuehdot löydät:
https://lvi123.fi/tilausohjeet

alt

 

PUUKATTILAT, käänteispalokattilat, vaihtopolttokattilat, alapalokattilat, kiinteän polttoaineen kattilat, keskuslämmityskattilat